Menu
Un projet réalisé par :AGENCE DEMONT REYNAUD PPIL  Architecte à Montrouge

surélévation pavillon / MAISON R

 Montrouge - 92
AGENCE DEMONT REYNAUD PPIL
Accueil Projets surélévation pavillon / MAISON R

Surélévation d'une maison particulière à Montrouge.

surélévation pavillon / MAISON R

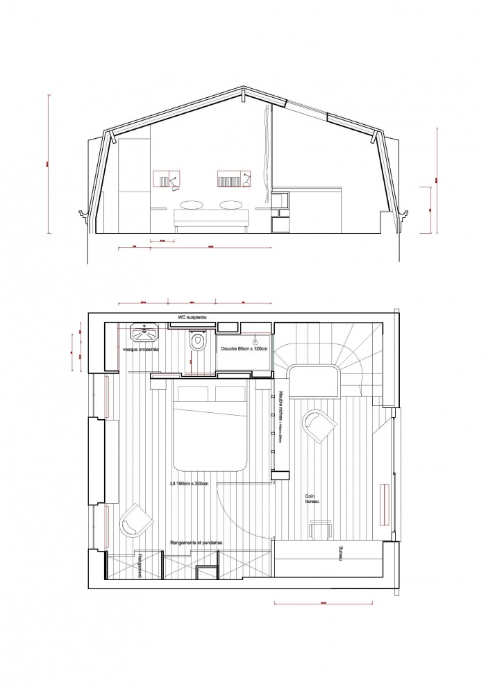
Notre mission consistait à rajouter un étage supplémentaire d'un pavillon typique de la première couronne d'IDF. Nous avons organisé un espace modulable afin d'aménager une suite parentale et un espace de travail (bureau).
La suite parentale comprend: un grand meuble de rangements (dont un home cinéma intégré), une salle de bain, et une grande verrière verticale en acier de type "atelier d'artiste"(Cette verrière intérieur permet de bénéficier d'une belle lumière lors du soleil couchant).
L'espace de travail comprend: un grand plateau et une bibliothèque qui s'intègre dans le grand meuble commun avec la chambre.
Par ailleurs, l'enjeu de ce coin bureau consistait à être utilisé la journée sans laisser entrevoir le coin nuit. Le lit est intégralement caché par une grande porte sur pivot. La porte peut donc rester ouverte afin de bénéficier d'un espace de travail traversant.

  • surélévation pavillon / MAISON R : image_projet_mini_52496

    Vue du grand meuble

  • surélévation pavillon / MAISON R : PPIL grand meuble2

    Ouverture des placards

  • surélévation pavillon / MAISON R : PPIL grand meuble3

    Ecran du Home cinéma

  • surélévation pavillon / MAISON R : PPIL grand meuble4

    Fermeture entre les deux espaces (porte sur pivot)

  • surélévation pavillon / MAISON R : PPIL grand meuble5

    Ouverture entre les deux espaces (porte sur pivot)

  • surélévation pavillon / MAISON R : PPIL Suite 1

    suite

  • surélévation pavillon / MAISON R : Montage 3D du projet

    Modélisation 3D du projet avant travaux

  • surélévation pavillon / MAISON R : Vue espace de travail

    Vue de l'espace de travail.

  • surélévation pavillon / MAISON R : Montage 3D du projet (2)
  • surélévation pavillon / MAISON R : PPIL Elévation meuble modulable
  • surélévation pavillon / MAISON R : PPil Coupe et plan du projet
  • surélévation pavillon / MAISON R : avant travaux 01

    Etat avant travaux de surélévation de toiture.

  • surélévation pavillon / MAISON R : chantier vue 6

    Chantier. Vue de la surélévation en construction et dépose de l'ancienne charpente.

  • surélévation pavillon / MAISON R : Chantier

    Chantier, vue entre les deux toits

  • surélévation pavillon / MAISON R : chantier vue 4

    chantier

Trouvez un architecte pour votre projet

Protection de vos données personnelles

Depuis toujours, architectes-france.com ne transfère aucune donnée personnelle à d'autres acteurs que ceux directement concernés par le projet (architectes, architectes d'intérieur...) et qui appartiennent à son réseau. Nos listes ne sont jamais transmises ou vendues à des partenaires extérieurs, même si ceux-ci appartiennent au domaine de la construction.
Toute modification dans ce domaine ne serait effectuée qu'avec votre consentement.

Je consens à ce que mes données personnelles soient collectées pour permettre à architectes-france de transférer votre projet aux architectes. Seul Architectes-france, ses équipes internes et la maitrise d'oeuvre concernée par le projet y ont accès. Aucune transmission de données à des tiers à l'exclusion de ceux décrits ci dessus n'est réalisée.

Mes données téléphoniques seront uniquement utilisées par Architectes-france.com et les architectes de notre réseau dans le cadre de la qualification et du suivi de mon projet.

Les données sont conservées pendant une durée de 18 mois courant à partir des derniers contacts effectifs entre architectes-france et vous ou architectes-france et un membre de la maitrise d'oeuvre en rapport avec ce projet et qui serait en relation avec architectes-france.

Conformément à la loi « informatique et libertés », vous pouvez exercer votre droit d'accès aux données vous concernant et les faire rectifier en contactant : Architectes-france, 23 avenue du Mirail - parc du Mirail - 33370 Artigues-près Bordeaux. Tél. 05.47.74.51.01 - contact@architectes-france.com

Trouvez un architecte pour votre projet

Protection de vos données personnelles

Depuis toujours, architectes-france.com ne transfère aucune donnée personnelle à d'autres acteurs que ceux directement concernés par le projet (architectes, architectes d'intérieur...) et qui appartiennent à son réseau. Nos listes ne sont jamais transmises ou vendues à des partenaires extérieurs, même si ceux-ci appartiennent au domaine de la construction.
Toute modification dans ce domaine ne serait effectuée qu'avec votre consentement.

Je consens à ce que mes données personnelles soient collectées pour permettre à architectes-france de transférer votre projet aux architectes. Seul Architectes-france, ses équipes internes et la maitrise d'oeuvre concernée par le projet y ont accès. Aucune transmission de données à des tiers à l'exclusion de ceux décrits ci dessus n'est réalisée.

Mes données téléphoniques seront uniquement utilisées par Architectes-france.com et les architectes de notre réseau dans le cadre de la qualification et du suivi de mon projet.

Les données sont conservées pendant une durée de 18 mois courant à partir des derniers contacts effectifs entre architectes-france et vous ou architectes-france et un membre de la maitrise d'oeuvre en rapport avec ce projet et qui serait en relation avec architectes-france.

Conformément à la loi « informatique et libertés », vous pouvez exercer votre droit d'accès aux données vous concernant et les faire rectifier en contactant : Architectes-france, 23 avenue du Mirail - parc du Mirail - 33370 Artigues-près Bordeaux. Tél. 05.47.74.51.01 - contact@architectes-france.com