
Rénovation et extension de maison de ville - Corbeil-Essonnes
Corbeil-Essonnes - 9120m² extension
80 m2 rénovation maison existante,
Rénovation ancien atelier de doreur
Livraison 2017
Parcelle en lanière desservie par une venelle
Le terrain concerné n'est desservi que par un sentier piéton d'1.80m de large dans le centre-ville historique de Corbeil-Essonnes.
La parcelle très en longueur mesure environ 7m de large et 47m de long.
On distingue deux bâtiments :
- la porte d’entrée depuis le sentier donne directement accès à un ancien atelier de doreur qui fait actuellement office de débarras
- en fond de jardin, la maison principale en « L » qui se décompose en deux corps de bâtiments : une maison en R+1 collée sur les limites Nord, Est et Sud et une extension collée sur la limite Nord
Au droit de la maison principale en fond de jardin se situe une terrasse en béton recouverte de vigne.
Une extension pour transformer une maison en "L" en maison à patio
Le projet consiste à rénover et réorganiser la maison existante, transformer l’atelier de doreur en jardin d’hiver / local vélo / bricolage, et créer une extension. Le programme initial consistait à créer cette extension par surélévation, mais la parcelle en lanière, la typologie de maison en "L", et l'usage des habitants ("on mange en terrasse dès qu'il y a un rayon de soleil") nous poussent à proposer d'implanter le volume de l'extension dans le prolongement de la terrasse existante afin de l'intégrer totalement à la maison ; sur cette terrasse devenue patio s’adressent notamment les pièces de séjour / salle à manger (traversants) et la chambre parentale.
L’extension consiste en deux volumes parallélépipédiques simples, bas afin de s’intégrer discrètement de hauteurs légèrement différentes : 3,05 m pour le volume le plus horizontal collé en limite séparative, et 3,50 m pour le volume haut et étroit de l’entrée. Le matériau choisi en façade est l'acier auto-patinable, pour son aspect à la fois contemporain et parfaitement adapté au tissu ancien.
-
-
Enchaînement patio / extension / jardin / atelier
-
Vue du prolongement du séjour vers le patio
-
Vue du séjour vers le jardin
-
Vue de la cuisine vers le jardin
-
Vue depuis l'entrée vers le séjour
-
Vue du bureau
-
Vue de la suite parentale
-
Vue de l'extension
-
Photo de chantier ossature bois
-
Plan masse
-
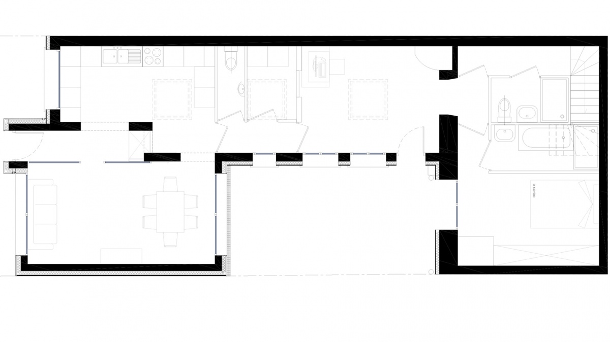
Plan rez de chaussée
-
Coupe sur le patio
-
Axonométrie de l'existant
-
Insertion du volume du séjour
-
Insertion du volume d'entrée
-
Décalage des volume en altimétrie et planimétrie
-
Photos de l'existant
Vue du patio