
Rénovation et extension d'un ancien corps de ferme
Les axes sur lesquels repose le projet sont :
- Proposer une architecture ouverte apportant un exthétisme contemporain à la simplicité du volume existant.
- Profiter de l'orientation Sud et du volume existant pour créer un séjour toute hauteur avec un apport maximal de lumière.
- Créer une extension avec un atelier indépendant.
Les axes sur lesquels repose le projet sont :
- Proposer une architecture ouverte apportant un exthétisme contemporain à la simplicité du volume existant.
- Profiter de l'orientation Sud et du volume existant pour créer un séjour toute hauteur avec un apport maximal de lumière.
- Créer une extension avec un atelier indépendant.
-
-
Réalisation
-
Passerelle
-
Vide sur séjour
-
Plan RDC
-
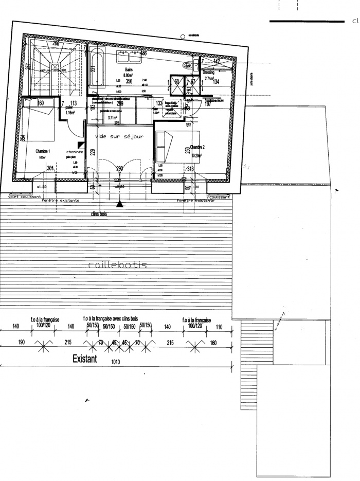
Plan étage
Avant