Menu
Un projet réalisé par :RVB  Architecte à Paris

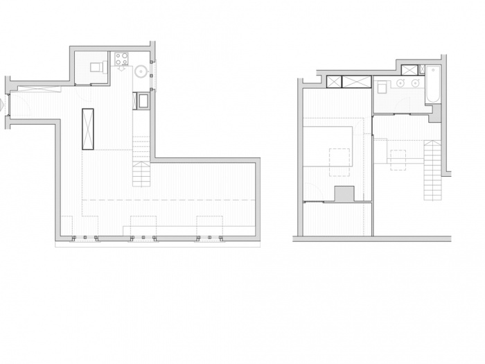
Logement_Studio à Paris 18e

 Paris - 75
RVB
Accueil Projets Logement_Studio à Paris 18e

Aménagement et agencement d'un appartement avec mezzanine à Paris, dans le 18e arrondissement.

Logement_Studio à Paris 18e
  • Logement_Studio à Paris 18e : 03
  • Logement_Studio à Paris 18e : 02
  • Logement_Studio à Paris 18e : E01
  • Logement_Studio à Paris 18e : E01

Trouvez un architecte pour votre projet

Protection de vos données personnelles

Depuis toujours, architectes-france.com ne transfère aucune donnée personnelle à d'autres acteurs que ceux directement concernés par le projet (architectes, architectes d'intérieur...) et qui appartiennent à son réseau. Nos listes ne sont jamais transmises ou vendues à des partenaires extérieurs, même si ceux-ci appartiennent au domaine de la construction.
Toute modification dans ce domaine ne serait effectuée qu'avec votre consentement.

Je consens à ce que mes données personnelles soient collectées pour permettre à architectes-france de transférer votre projet aux architectes. Seul Architectes-france, ses équipes internes et la maitrise d'oeuvre concernée par le projet y ont accès. Aucune transmission de données à des tiers à l'exclusion de ceux décrits ci dessus n'est réalisée.

Mes données téléphoniques seront uniquement utilisées par Architectes-france.com et les architectes de notre réseau dans le cadre de la qualification et du suivi de mon projet.

Les données sont conservées pendant une durée de 18 mois courant à partir des derniers contacts effectifs entre architectes-france et vous ou architectes-france et un membre de la maitrise d'oeuvre en rapport avec ce projet et qui serait en relation avec architectes-france.

Conformément à la loi « informatique et libertés », vous pouvez exercer votre droit d'accès aux données vous concernant et les faire rectifier en contactant : Architectes-france, 23 avenue du Mirail - parc du Mirail - 33370 Artigues-près Bordeaux. Tél. 05.47.74.51.01 - contact@architectes-france.com

Trouvez un architecte pour votre projet

Protection de vos données personnelles

Depuis toujours, architectes-france.com ne transfère aucune donnée personnelle à d'autres acteurs que ceux directement concernés par le projet (architectes, architectes d'intérieur...) et qui appartiennent à son réseau. Nos listes ne sont jamais transmises ou vendues à des partenaires extérieurs, même si ceux-ci appartiennent au domaine de la construction.
Toute modification dans ce domaine ne serait effectuée qu'avec votre consentement.

Je consens à ce que mes données personnelles soient collectées pour permettre à architectes-france de transférer votre projet aux architectes. Seul Architectes-france, ses équipes internes et la maitrise d'oeuvre concernée par le projet y ont accès. Aucune transmission de données à des tiers à l'exclusion de ceux décrits ci dessus n'est réalisée.

Mes données téléphoniques seront uniquement utilisées par Architectes-france.com et les architectes de notre réseau dans le cadre de la qualification et du suivi de mon projet.

Les données sont conservées pendant une durée de 18 mois courant à partir des derniers contacts effectifs entre architectes-france et vous ou architectes-france et un membre de la maitrise d'oeuvre en rapport avec ce projet et qui serait en relation avec architectes-france.

Conformément à la loi « informatique et libertés », vous pouvez exercer votre droit d'accès aux données vous concernant et les faire rectifier en contactant : Architectes-france, 23 avenue du Mirail - parc du Mirail - 33370 Artigues-près Bordeaux. Tél. 05.47.74.51.01 - contact@architectes-france.com