Menu
Un projet réalisé par :CcommeC  Architecte à Cachan
CcommeC
Accueil Projets loft 152

annexion d’un atelier-entrepôt et d’un garage à une maison individuelle existante

loft 152

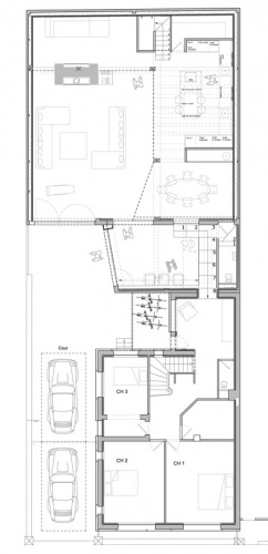
Le programme des travaux porte sur le changement de destination d’un atelier-entrepôt et d’un garage attenant à la maison d’habitation existante avec réhabilitation complète portant la surface de plancher de 130 m2 à 345 m2.
Une trémie est créée dans la dalle du garage pour permettre le passage de tête de l’escalier créé menant à la maison existante, avec incrustation de dalles de verre pour l’apport de lumière dans cette zone.
La verrière de l’atelier est remplacée pour apporter le confort thermique et des châssis type châssis parisiens sont installés selon l’implantation de la mezzanine.
Les accès (à l’atelier et au garage) sont conservés dans leurs proportions et des châssis en aluminium laqué sont mis-en-place, présentant un rythme de divisions original et jouant sur les parties pleines et les parties vitrées pour une touche contemporaine.
L’entrée principale de la maison se fait par « l’ancien » garage. L’ensemble des façades est traité conformément aux travaux de ravalement et remplacement des menuiseries extérieures de la maison existante. En lieu et place de l’ancien escalier extérieur menant à la maison, la construction d’une structure légère permet la création d’une petite terrasse et ainsi d’accentuer la relation intérieur/extérieur sur différents niveaux.

  • loft 152 : image_projet_mini_60238
  • loft 152 : 152-1
  • loft 152 : 152-2.JPG
  • loft 152 : 152-3.JPG
  • loft 152 : 152-4.JPG
  • loft 152 : 152-5.JPG
  • loft 152 : image_projet_mini_60244
  • loft 152 : 152-8.JPG
  • loft 152 : 152-9.JPG
  • loft 152 : 152-10.JPG
  • loft 152 : 152-plan1
  • loft 152 : 152-plan2

Trouvez un architecte pour votre projet

Protection de vos données personnelles

Depuis toujours, architectes-france.com ne transfère aucune donnée personnelle à d'autres acteurs que ceux directement concernés par le projet (architectes, architectes d'intérieur...) et qui appartiennent à son réseau. Nos listes ne sont jamais transmises ou vendues à des partenaires extérieurs, même si ceux-ci appartiennent au domaine de la construction.
Toute modification dans ce domaine ne serait effectuée qu'avec votre consentement.

Je consens à ce que mes données personnelles soient collectées pour permettre à architectes-france de transférer votre projet aux architectes. Seul Architectes-france, ses équipes internes et la maitrise d'oeuvre concernée par le projet y ont accès. Aucune transmission de données à des tiers à l'exclusion de ceux décrits ci dessus n'est réalisée.

Mes données téléphoniques seront uniquement utilisées par Architectes-france.com et les architectes de notre réseau dans le cadre de la qualification et du suivi de mon projet.

Les données sont conservées pendant une durée de 18 mois courant à partir des derniers contacts effectifs entre architectes-france et vous ou architectes-france et un membre de la maitrise d'oeuvre en rapport avec ce projet et qui serait en relation avec architectes-france.

Conformément à la loi « informatique et libertés », vous pouvez exercer votre droit d'accès aux données vous concernant et les faire rectifier en contactant : Architectes-france, 23 avenue du Mirail - parc du Mirail - 33370 Artigues-près Bordeaux. Tél. 05.47.74.51.01 - contact@architectes-france.com

Trouvez un architecte pour votre projet

Protection de vos données personnelles

Depuis toujours, architectes-france.com ne transfère aucune donnée personnelle à d'autres acteurs que ceux directement concernés par le projet (architectes, architectes d'intérieur...) et qui appartiennent à son réseau. Nos listes ne sont jamais transmises ou vendues à des partenaires extérieurs, même si ceux-ci appartiennent au domaine de la construction.
Toute modification dans ce domaine ne serait effectuée qu'avec votre consentement.

Je consens à ce que mes données personnelles soient collectées pour permettre à architectes-france de transférer votre projet aux architectes. Seul Architectes-france, ses équipes internes et la maitrise d'oeuvre concernée par le projet y ont accès. Aucune transmission de données à des tiers à l'exclusion de ceux décrits ci dessus n'est réalisée.

Mes données téléphoniques seront uniquement utilisées par Architectes-france.com et les architectes de notre réseau dans le cadre de la qualification et du suivi de mon projet.

Les données sont conservées pendant une durée de 18 mois courant à partir des derniers contacts effectifs entre architectes-france et vous ou architectes-france et un membre de la maitrise d'oeuvre en rapport avec ce projet et qui serait en relation avec architectes-france.

Conformément à la loi « informatique et libertés », vous pouvez exercer votre droit d'accès aux données vous concernant et les faire rectifier en contactant : Architectes-france, 23 avenue du Mirail - parc du Mirail - 33370 Artigues-près Bordeaux. Tél. 05.47.74.51.01 - contact@architectes-france.com